Alexandru Grindeanu este un absolvent al Universității de Arhitectură și Urbanism "Ion Mincu" (2009-2015). Născut în 1989, în Hunedoara, practică înotul de performanță de la 8 ani, clasându-se în primii 10 la campionatele naționale de la Hunedoara.
Rezultate practicii sportului de performanță au mers mână în mână cu rezultatele din perioada studenției. Astfel, în 2013 câștigă concursul pentru propunerea unui spațiu public de pe Strada Berzei. În 2014 participă la un workshop organizat în Finlanda de către facultate, fiind selecționat împreuna cu alți 6 studenți.
ȘCOLI DE MESERII
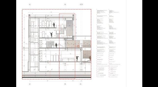
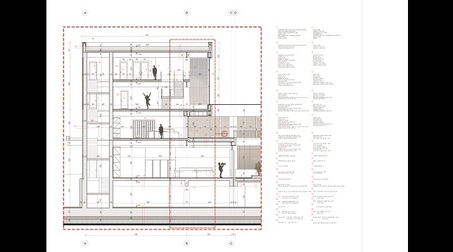
Locația aleasă pentru dezvoltare proiectului se află în București, Sector 6, pe Calea Plevnei 145. Aici se regăsește fosta fabrică de pâine Calea Plevnei care producea pentru armată cât și pentru populație. Situl propus pentru școală face parte din ansamblul istoric al fostei Manutanțe Centrale a Armatei, constituit pe acest teren începând cu anii 1877-1881 și dezvoltat de-a lungul Căii Plevnei, în frontul său sudic. Cele 14 corpuri de clădire constituie fostul nucleu de producție și folosite ca fabrică până în anii 2000.
Ca abordare s-au identificat trei posibilități de a interveni asupra clădirilor existente. Primul ar fi acela de păstrare și restaurare a tuturor clădirilor, al doilea fiind reabilitarea cu posibilități de intervenție, iar a treia, cea pentru care s-a optat, fiind identificarea clădirilor valoroase ce dau substanță sitului, restul fiind eliminate.
Drept funcțiune s-a optat pentru școli de meserii pentru a pastra viu caracterul industrial al zonei. Școlile de meserii au ca scop concretizarea unei comunități a meșteșugului. Aici se vor putea desfășura activități de prelucrare a metalului, lemnului și sticlei. Acest tip de școală nu poate fi un eveniment izolat, ci dimpotrivă trebuie să fie deschis, capabil să transmită și să primească informații.

Proiectul cuprinde școlile, un cămin, o bibliotecă și o cantină, funcțiuni ce aparțin clădirilor propuse. Clădirile vechi găzduiesc un muzeu, un boutique hotel, dar și o brutărie.
Conceptul urmărește tipologia dictată de cele 4 clădiri identificate ca fiind valoroase pe sit ( Silozul vechi de grâu 1886, Vechea moară 1881, Centrala termică cu coșul de fum 1882 și Vechiul depozit de făină 1883). Aceste patru clădiri prezintă o arhitectură ce a fost păstrată de-a lungul timpului, deși s-a intervenit structural (consolidări) asupra acestora.
Terenul a avut o evoluție treptată fiind în posesia a mai multor proprietari, aceasta ducând la diferitele modificări pe care le-au suferit anumite clădiri.
Rezultate practicii sportului de performanță au mers mână în mână cu rezultatele din perioada studenției. Astfel, în 2013 câștigă concursul pentru propunerea unui spațiu public de pe Strada Berzei. În 2014 participă la un workshop organizat în Finlanda de către facultate, fiind selecționat împreuna cu alți 6 studenți.
ȘCOLI DE MESERII
Locația aleasă pentru dezvoltare proiectului se află în București, Sector 6, pe Calea Plevnei 145. Aici se regăsește fosta fabrică de pâine Calea Plevnei care producea pentru armată cât și pentru populație. Situl propus pentru școală face parte din ansamblul istoric al fostei Manutanțe Centrale a Armatei, constituit pe acest teren începând cu anii 1877-1881 și dezvoltat de-a lungul Căii Plevnei, în frontul său sudic. Cele 14 corpuri de clădire constituie fostul nucleu de producție și folosite ca fabrică până în anii 2000.
Ca abordare s-au identificat trei posibilități de a interveni asupra clădirilor existente. Primul ar fi acela de păstrare și restaurare a tuturor clădirilor, al doilea fiind reabilitarea cu posibilități de intervenție, iar a treia, cea pentru care s-a optat, fiind identificarea clădirilor valoroase ce dau substanță sitului, restul fiind eliminate.
Drept funcțiune s-a optat pentru școli de meserii pentru a pastra viu caracterul industrial al zonei. Școlile de meserii au ca scop concretizarea unei comunități a meșteșugului. Aici se vor putea desfășura activități de prelucrare a metalului, lemnului și sticlei. Acest tip de școală nu poate fi un eveniment izolat, ci dimpotrivă trebuie să fie deschis, capabil să transmită și să primească informații.

Proiectul cuprinde școlile, un cămin, o bibliotecă și o cantină, funcțiuni ce aparțin clădirilor propuse. Clădirile vechi găzduiesc un muzeu, un boutique hotel, dar și o brutărie.
Conceptul urmărește tipologia dictată de cele 4 clădiri identificate ca fiind valoroase pe sit ( Silozul vechi de grâu 1886, Vechea moară 1881, Centrala termică cu coșul de fum 1882 și Vechiul depozit de făină 1883). Aceste patru clădiri prezintă o arhitectură ce a fost păstrată de-a lungul timpului, deși s-a intervenit structural (consolidări) asupra acestora.
Terenul a avut o evoluție treptată fiind în posesia a mai multor proprietari, aceasta ducând la diferitele modificări pe care le-au suferit anumite clădiri.






