Greta Samiș este absolventă a UAUIM. A studiat arhitectura atât în București, cât și în Barcelona, la ETSAV. A căpătat experiență lucrând la biroul de arhitectură danez COBE, cât și participând la diverse workshopuri internaționale.
CRESCÂND IDEI. COLEGIU PENTRU ANTREPRENORI. INCUBATOR DE AFACERI ȘI CĂMIN STUDENȚESC ÎN COPENHAGA.
CRESCÂND IDEI. COLEGIU PENTRU ANTREPRENORI. INCUBATOR DE AFACERI ȘI CĂMIN STUDENȚESC ÎN COPENHAGA.
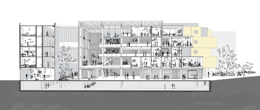
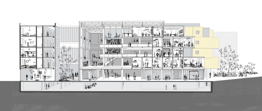
Proiectul reprezintă un E-College, program care reunește studenți din diverse discipline și le oferă posibilitatea creării unor noi afaceri, lucrând în echipe multidisciplinare, îmbinând astfel locuirea și munca. Situl se află la intersecția a două trasee importante ale orașului Copenhaga: o arteră majoră de circulație și o promenadă verde, inclusă în traseul pentru bicicliști al orașului.
.jpg)
Propunerea arhitecturală răspunde atât caracterului bivalent al programului, cât și dualității sitului, poziționat la confluența dintre o zonă cu țesut unitar și compact și promenada verde, caracterizată prin iregularitate. Zona de cămin studențesc se adresează rigiditații vecinătăților construite, în timp ce zona de start-up se manifestă liber către spațiul public.
Proiectul jonglează constant între spațiile private și de lucru în echipă și spațiile comune, realizând treceri succesive de la individ, la echipă, grup și comunitatea colegiului, cât și a relației acestora cu publicul.






