Situl ales se află pe strada Teodosie Rudeanu nr. 8-14, pe locul fostei întreprinderi Precizia, la nord de inelul central al Bucureștiului, având conexiuni bune atât cu sectorul cât și cu orașul, fiind înconjurat de dotări de importanță municipală și locală – licee, școli generale, Spitalul de Copii "Grigore Alexandrescu" și mai multe muzee (Antipa, Geologie, Muzeul Țăranului Român).
Două funcțiuni sunt insuficient reprezentate în zonă: cea de grădiniță și cea de creșă. Mai exact, în întreg sectorul 1 nu există decât două creșe, ambele aflate la mare distanță de sit și de zona centrală, iar în cazul grădinițelor este vorba de o insuficiență – deși în zonă se află trei grădinițe acestea sunt deja pline, iar două dintre ele se află în interiorul inelului, deci de cealaltă parte față de situl ales. Deoarece prin legislația referitoare la grădinițe, bulevardele și arterele de mare importanță sunt considerate bariere, practic zona este deservită de o singură grădiniță de stat.
Proximitatea imediată a Primăriei Sectorului 1 și a Liceului "Ion Neculce", dar și faptul că pe situl ales s-a aflat o funcțiune similară (în 1911 aici se afla, conform planului, școala comunală, construită pe fosta proprietate Ion Elefterescu, cumpărată de către primărie la înființarea sectorului de Verde pentru a-și construi aici sediul precum și o serie de dotări comunale) fac ca parcela să fie propice construirii unei grădinițe.
Proiectul își propune plombarea țesutului urban tradițional din spatele Primăriei Sectorului 1 cu o clădire care să găzduiască o grădiniță, o creșă și o zonă de afterschool ce poate fi folosită de școlile și liceele din apropiere, având în același timp și o componentă multifuncțională adresată copiilor, părinților, comunității (dată fiind apropierea de Primărie).
Prin prelungirea străzii Maior Alexandru Câmpeanu până în strada Teodosie Rudeanu se obține, adiacent intersecției acestora, un teren de formă regulată, trapezoidală, eliminându-se casele ce fac mai puțin lizibilă insula cu primăria și liceul. Astfel se eliberează perspectiva dinspre Primărie către sit, ce face ca fațada de aici să devină potrivită amplasării accesului în noua clădire. Pe aceeași latură se dispune și accesul angajaților și cel în parcarea subterană.
Frontul la strada Teodosie Rudeanu și cel la Alexandru Câmpeanu trebuie tratate diferit datorită caracterului lor. În cazul primei străzi este necesară o fragmentare a fațadei astfel încât ea să între în acord cu țesutul înconjurător, ce constă în principal din locuințe vagon, cu latura scurtă la stradă. În cel de-al doilea caz este importantă orientarea către clădirea primăriei, foarte prezentă în sit.
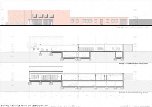
Din spațiul acoperit de pe colț se poate intra, în cazul unor evenimente cu caracter comunal, direct în sala multifuncțională (ce servește ca sală de sport uzual dar și ca sală de serbare ocazional), sau se poate parcurge spațiul filtru pentru a se accesa fie zona de creșă fie cea de grădiniță.
Nucleul grădiniței este reprezentat de holul de joacă dublat de ampla curte interioară. El este asemănător străzii ce bordează situl, din el ieșind o serie de alveole semi-private, asemenea curților locuințelor din împrejurimi; sălile de clasă funcționează astfel ca unități ce se pot deschide fie către aceste alveole (urmând apoi să comunice cu holul de joacă "public") fie către curți individuale pentru fiecare grupă. În timp ce alveolele sunt spații de adunare holul de joacă este un spațiu dinamic, în care copiii pot alerga, se pot desfășura în voie.
Pereții sălilor de clasă sunt dublați de mobilier ce formează nișe în care copiii se pot ascunde sau retrage. Zona de dormit este separată de cea de joacă dar se poate elibera pentru a găzdui diverse activități. Structura rămâne parțial vizibilă atât aici cât și în holul de joacă pentru a stimula curiozitatea copiilor și a-i încuraja.
Două funcțiuni sunt insuficient reprezentate în zonă: cea de grădiniță și cea de creșă. Mai exact, în întreg sectorul 1 nu există decât două creșe, ambele aflate la mare distanță de sit și de zona centrală, iar în cazul grădinițelor este vorba de o insuficiență – deși în zonă se află trei grădinițe acestea sunt deja pline, iar două dintre ele se află în interiorul inelului, deci de cealaltă parte față de situl ales. Deoarece prin legislația referitoare la grădinițe, bulevardele și arterele de mare importanță sunt considerate bariere, practic zona este deservită de o singură grădiniță de stat.
Proximitatea imediată a Primăriei Sectorului 1 și a Liceului "Ion Neculce", dar și faptul că pe situl ales s-a aflat o funcțiune similară (în 1911 aici se afla, conform planului, școala comunală, construită pe fosta proprietate Ion Elefterescu, cumpărată de către primărie la înființarea sectorului de Verde pentru a-și construi aici sediul precum și o serie de dotări comunale) fac ca parcela să fie propice construirii unei grădinițe.
Proiectul își propune plombarea țesutului urban tradițional din spatele Primăriei Sectorului 1 cu o clădire care să găzduiască o grădiniță, o creșă și o zonă de afterschool ce poate fi folosită de școlile și liceele din apropiere, având în același timp și o componentă multifuncțională adresată copiilor, părinților, comunității (dată fiind apropierea de Primărie).
Prin prelungirea străzii Maior Alexandru Câmpeanu până în strada Teodosie Rudeanu se obține, adiacent intersecției acestora, un teren de formă regulată, trapezoidală, eliminându-se casele ce fac mai puțin lizibilă insula cu primăria și liceul. Astfel se eliberează perspectiva dinspre Primărie către sit, ce face ca fațada de aici să devină potrivită amplasării accesului în noua clădire. Pe aceeași latură se dispune și accesul angajaților și cel în parcarea subterană.
Frontul la strada Teodosie Rudeanu și cel la Alexandru Câmpeanu trebuie tratate diferit datorită caracterului lor. În cazul primei străzi este necesară o fragmentare a fațadei astfel încât ea să între în acord cu țesutul înconjurător, ce constă în principal din locuințe vagon, cu latura scurtă la stradă. În cel de-al doilea caz este importantă orientarea către clădirea primăriei, foarte prezentă în sit.
Din spațiul acoperit de pe colț se poate intra, în cazul unor evenimente cu caracter comunal, direct în sala multifuncțională (ce servește ca sală de sport uzual dar și ca sală de serbare ocazional), sau se poate parcurge spațiul filtru pentru a se accesa fie zona de creșă fie cea de grădiniță.
Nucleul grădiniței este reprezentat de holul de joacă dublat de ampla curte interioară. El este asemănător străzii ce bordează situl, din el ieșind o serie de alveole semi-private, asemenea curților locuințelor din împrejurimi; sălile de clasă funcționează astfel ca unități ce se pot deschide fie către aceste alveole (urmând apoi să comunice cu holul de joacă "public") fie către curți individuale pentru fiecare grupă. În timp ce alveolele sunt spații de adunare holul de joacă este un spațiu dinamic, în care copiii pot alerga, se pot desfășura în voie.
Pereții sălilor de clasă sunt dublați de mobilier ce formează nișe în care copiii se pot ascunde sau retrage. Zona de dormit este separată de cea de joacă dar se poate elibera pentru a găzdui diverse activități. Structura rămâne parțial vizibilă atât aici cât și în holul de joacă pentru a stimula curiozitatea copiilor și a-i încuraja.






