Proaspăt absolventă a Facultății de Arhitectură, Roxana Ioniță este o fire creativă care reușește să îmbine o vedere de ansamblu realistă cu amprenta personală romantică. Perfecționistă din fire, încă se mai gândește cum ar fi putut să îmbunătățească lucrarea de diplomă.
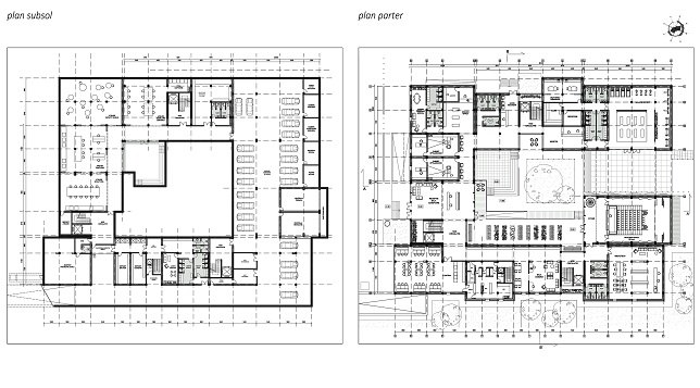
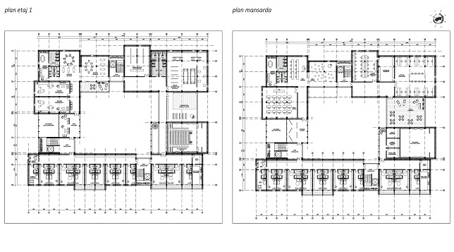
CENTRU DE REINTEGRARE SOCIALĂ PENTRU NEVĂZĂTORI, BUCUREȘTI. DIAGNOSTIC, TERAPIE, FORMARE PROFESIONALĂ
Adresat în special persoanelor care și-au pierdut simțul văzului de-a lungul vieții, dar și celor care s-au născut fără acesta, centrul oferă un program complet de recuperare fizică și consiliere psihologică cu scopul de a restabili independența utilizatorilor. Mai mult decât a oferi funcțiuni dedicate, proiectul se constituie într-un obiect de arhitectură multisenzorială - prin utilizarea diferitelor tipuri de materiale și transparențe - inspirat de imaginea fragmentată a țesutului învecinat, o alăturare eterogenă de texturi, volume și culori.
În ceea ce privește organizarea planimetrică, pentru a facilita orientarea, ansamblul se organizează sub forma unei incinte ce ține cont de scara redusă a vecinătăților. Grupate de-a lungul unei coloane centrale de circulație, modulele aparent individualizate la exterior oferă aspectul unui sat, în timp ce la interior acestea sunt conectate. O astfel de interpretare a imaginii locuinței tipice diminuează aspectul instituțional al clădirii.

Având drept sursă de inspirație țesutul urban învecinat, proiectul de față explorează ideea de eterogenitate în mediul construit, aplicată asupra tuturor elementelor componente (volumetrie, textură, cromatică), ca un factor ce poate facilita orientarea persoanelor nevăzătoare în spațiul interior.
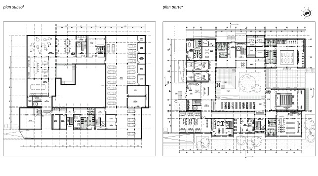
CENTRU DE REINTEGRARE SOCIALĂ PENTRU NEVĂZĂTORI, BUCUREȘTI. DIAGNOSTIC, TERAPIE, FORMARE PROFESIONALĂ
Adresat în special persoanelor care și-au pierdut simțul văzului de-a lungul vieții, dar și celor care s-au născut fără acesta, centrul oferă un program complet de recuperare fizică și consiliere psihologică cu scopul de a restabili independența utilizatorilor. Mai mult decât a oferi funcțiuni dedicate, proiectul se constituie într-un obiect de arhitectură multisenzorială - prin utilizarea diferitelor tipuri de materiale și transparențe - inspirat de imaginea fragmentată a țesutului învecinat, o alăturare eterogenă de texturi, volume și culori.
În ceea ce privește organizarea planimetrică, pentru a facilita orientarea, ansamblul se organizează sub forma unei incinte ce ține cont de scara redusă a vecinătăților. Grupate de-a lungul unei coloane centrale de circulație, modulele aparent individualizate la exterior oferă aspectul unui sat, în timp ce la interior acestea sunt conectate. O astfel de interpretare a imaginii locuinței tipice diminuează aspectul instituțional al clădirii.

Având drept sursă de inspirație țesutul urban învecinat, proiectul de față explorează ideea de eterogenitate în mediul construit, aplicată asupra tuturor elementelor componente (volumetrie, textură, cromatică), ca un factor ce poate facilita orientarea persoanelor nevăzătoare în spațiul interior.






