Absolvent al liceului „I. N. Nicolae Socolescu”, promoția 2008, profil arhitectură. A participat la workshop-uri organizate de facultate:
„(DE-)BLOCARE 2014, „PLAY CONTEXT. PLAY EVOLUTION. PLAY BUCHAREST” pentru Bienala de la Veneția 2014. Absolvent al Facultății de Arhitectură, Universitatea „Spiru Haret” în promoția 2015 .
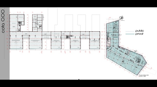
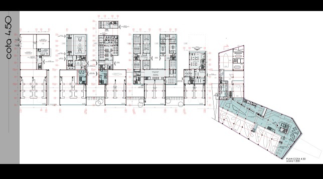
MUZEU NAVAL
Proiectul este un muzeu naval situat în vecinătatea Şantierului Naval Sud, pe un teren momentan lipsit de funcţiune pe care există o clădire dezafectată. Ca poziţionare, situl reprezintă punctul terminus al falezei Dunării. În apropiere se află un punct de trecere cu bacul.
Pentru a susţine funcţiunea de muzeu, propunerea include o zonă de producţie de nave de dimensiuni mici şi mijlocii şi o scoală de pregătire a personalului, constituind o desfăşurare treptată a funcţiunilor dinspre şantierul naval către zona publică.
Compoziţia ilustrează volumetric această desfăşurare a funcţiunilor, elementul principal-cu caracter de reper volumetric al zonei, fiind corpul muzeului. Volumele unităţilor de producţie, cele ale şcolii şi cel al muzeului sunt conectate de un element liniar, în care se află o cale de transport a vizitatorilor, traseul muzeului presupunând şi vizitarea atelierelor de producţie.

Solutia propusa ilustrează volumetric desfaşurarea unor funcţiuni destinate revitalizarii santierului Naval. Corpul muzeului devine reper al zonei. Volumele unităţilor de producţie, cele ale şcolii şi al muzeului sunt conectate de un volum liniar care permite vizitatorilor accesul catre atelierele de producţie.
„(DE-)BLOCARE 2014, „PLAY CONTEXT. PLAY EVOLUTION. PLAY BUCHAREST” pentru Bienala de la Veneția 2014. Absolvent al Facultății de Arhitectură, Universitatea „Spiru Haret” în promoția 2015 .
MUZEU NAVAL
Proiectul este un muzeu naval situat în vecinătatea Şantierului Naval Sud, pe un teren momentan lipsit de funcţiune pe care există o clădire dezafectată. Ca poziţionare, situl reprezintă punctul terminus al falezei Dunării. În apropiere se află un punct de trecere cu bacul.
Pentru a susţine funcţiunea de muzeu, propunerea include o zonă de producţie de nave de dimensiuni mici şi mijlocii şi o scoală de pregătire a personalului, constituind o desfăşurare treptată a funcţiunilor dinspre şantierul naval către zona publică.
Compoziţia ilustrează volumetric această desfăşurare a funcţiunilor, elementul principal-cu caracter de reper volumetric al zonei, fiind corpul muzeului. Volumele unităţilor de producţie, cele ale şcolii şi cel al muzeului sunt conectate de un element liniar, în care se află o cale de transport a vizitatorilor, traseul muzeului presupunând şi vizitarea atelierelor de producţie.

Solutia propusa ilustrează volumetric desfaşurarea unor funcţiuni destinate revitalizarii santierului Naval. Corpul muzeului devine reper al zonei. Volumele unităţilor de producţie, cele ale şcolii şi al muzeului sunt conectate de un volum liniar care permite vizitatorilor accesul catre atelierele de producţie.






