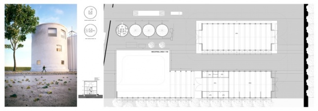
Arhitectura capătă sens acumulând informații. Dorința exprimată prin acest proiect este de a descoperi arhitectura prin firescul și realul lucrurilor. Programul propus este acela de „complex agricol experimental”, în esență o fermă agricolă de cereale, dar care antrenează o funcție importantă, de mediator zonal între producătorii și specialiștii mediului agricol. Acest complex poate fi considerat un mediu neutru de dezvoltare a noilor direcții în agricultură, atât prin faptul că este un spațiu de comunicare între specialiștii în agricultură, cât și prin faptul că oferă, palpabil, un spațiu de dezvoltare și analiză obiectivă a noilor culturi de cereale, prin loturile de culturi experimentale puse la dispoziție. Funcțiunile necesare unui astfel de proiect sunt și de natură industrială, precum spațiile pentru depozitare, dar trebuie să răspundă și problemelor locuirii. Modul în care se se vor întrepătrunde cele două tipuri funcționale va reprezenta o particularitate a proiectului.
Contextul în care este necesar acest proiect este unul natural, iar modul de raportare la sit este foarte important pentru integrarea sa în peisaj. Vecinătatea înseamnă întinderile de pământ agricol muncite pentru nevoia de hrană, iar linia orizontului pare un reper aproape material în acest context. Ideea de înțelegere a limitei și interpretarea acesteia în proiect este esențială în dezvoltarea sa. Există o putere a lucrurilor simple prin faptul de a fi. În același fel și arhitectura trebuie să aparțină locului.
Obiectivul acestui proiect este acela de a răspunde unui caz real, iar proiectul obținut în urma studiului trebuie să aibă posibilitatea de a fi construit cu o investiție cât mai corectă. Din punct de vedere arhitectural, acest proiect poate fi valoros prin atmosferă și prin modul de integrare al funcțiunii în peisajul agricol. Este necesară o bună înțelegere a funcțiunii de fermă pentru cereale și modul de integrare al acesteia în context. Înțelegerea materialelor și modul propriu de raportare la funcțiune vor contura spațiul arhitectural. Modul de îmbinare al materialelor și rigurozitatea detaliilor oferă specificitate, iar ansamblul dă sens detaliilor. Proiectul trebuie să-și dovedească potențialul sustenabil de a trăi ca o enclavă prin utilizarea resurselor proprii. Poate fi considerat și un experiment al unei microsocietăți cu potențial de viață autosustenabil.
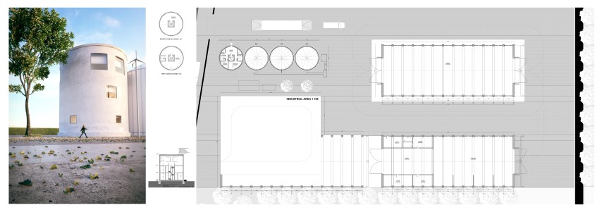
Contextul în care este necesar acest proiect este unul natural, iar modul de raportare la sit este foarte important pentru integrarea sa în peisaj. Vecinătatea înseamnă întinderile de pământ agricol muncite pentru nevoia de hrană, iar linia orizontului pare un reper aproape material în acest context. Ideea de înțelegere a limitei și interpretarea acesteia în proiect este esențială în dezvoltarea sa. Există o putere a lucrurilor simple prin faptul de a fi. În același fel și arhitectura trebuie să aparțină locului.
Obiectivul acestui proiect este acela de a răspunde unui caz real, iar proiectul obținut în urma studiului trebuie să aibă posibilitatea de a fi construit cu o investiție cât mai corectă. Din punct de vedere arhitectural, acest proiect poate fi valoros prin atmosferă și prin modul de integrare al funcțiunii în peisajul agricol. Este necesară o bună înțelegere a funcțiunii de fermă pentru cereale și modul de integrare al acesteia în context. Înțelegerea materialelor și modul propriu de raportare la funcțiune vor contura spațiul arhitectural. Modul de îmbinare al materialelor și rigurozitatea detaliilor oferă specificitate, iar ansamblul dă sens detaliilor. Proiectul trebuie să-și dovedească potențialul sustenabil de a trăi ca o enclavă prin utilizarea resurselor proprii. Poate fi considerat și un experiment al unei microsocietăți cu potențial de viață autosustenabil.






