Autorul proiectului este o persoană pasionată de ceea ce creează, încrezător în capacitatea frumosului de a construi o lume mai bună. Mai multe proiecte de-ale sale pot fi vizionate pe site-ul: www.sadea.ro
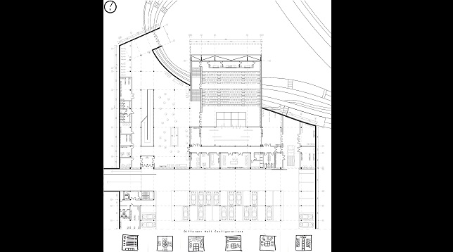
REINVENTAREA UNUI VECHI TRASEU
Printr-un tunel din București, zona Lujerului, erau introduse pentru prima dată metrourile în subteran. Acum, acest tunel înconjurat de zone active ale orașului, este lăsat abandonat. El circulă printre blocuri, este deschis, dar oamenii îl ocolesc. Prin traseul cultural propus, orașul recapătă un loc uitat.
Vagoanele de metrou erau aduse în București, la gara Cotroceni, iar apoi treceau intersecția Lujerului prin subteran, în drumul lor către primul depou de metrou. Acest tunel a fost abandonat de mai bine de 20 de ani, iar gara a devenit inactivă de 8 ani.
Tunelul are două portiuni supraterane și una subterană, a cărei secțiune are forma unui pătrat cu latura de 7m extrudat pe o lungime de 900m.
Proiectul propune o strategie de dezvoltare a zonei, o promenadă care unește părți ale traseului cu contextul existent. De-a lungul acestuia sunt înșiruite o serie de funcțiuni precum: proiecții, comerț de carte, workshop-uri, anticariate, cafenele etc. cu scopul de a activa spațiul și de a atrage utilizatori către descoperirea tunelului.
Printr-un tunel din București, zona Lujerului, erau introduse pentru prima dată metrourile în subteran. Acum, acest tunel înconjurat de zone active ale orașului, este lăsat abandonat. El circulă printre blocuri, este deschis, dar oamenii îl ocolesc. Prin traseul cultural propus, orașul recapătă un loc uitat.
REINVENTAREA UNUI VECHI TRASEU
Printr-un tunel din București, zona Lujerului, erau introduse pentru prima dată metrourile în subteran. Acum, acest tunel înconjurat de zone active ale orașului, este lăsat abandonat. El circulă printre blocuri, este deschis, dar oamenii îl ocolesc. Prin traseul cultural propus, orașul recapătă un loc uitat.
Vagoanele de metrou erau aduse în București, la gara Cotroceni, iar apoi treceau intersecția Lujerului prin subteran, în drumul lor către primul depou de metrou. Acest tunel a fost abandonat de mai bine de 20 de ani, iar gara a devenit inactivă de 8 ani.
Tunelul are două portiuni supraterane și una subterană, a cărei secțiune are forma unui pătrat cu latura de 7m extrudat pe o lungime de 900m.
Proiectul propune o strategie de dezvoltare a zonei, o promenadă care unește părți ale traseului cu contextul existent. De-a lungul acestuia sunt înșiruite o serie de funcțiuni precum: proiecții, comerț de carte, workshop-uri, anticariate, cafenele etc. cu scopul de a activa spațiul și de a atrage utilizatori către descoperirea tunelului.
Printr-un tunel din București, zona Lujerului, erau introduse pentru prima dată metrourile în subteran. Acum, acest tunel înconjurat de zone active ale orașului, este lăsat abandonat. El circulă printre blocuri, este deschis, dar oamenii îl ocolesc. Prin traseul cultural propus, orașul recapătă un loc uitat.






