Amplasamentul este situat în cartierul Poblenou din Barcelona, o zonă industrială importantă a regiunii catalane până în anii '60.
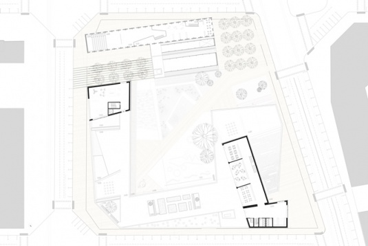
Proiectul prezintă o școală alternativă în cartierul Provencals de Poblenou, Barcelona, alături de conversia fabricii Ca Alier.
Am propus implementarea unui model de școală alternativă pentru copii cu vârste cuprinse între 6-16 ani, împărțită pe ciclul primar și secundar.
Dotările comune întregului ansamblu educațional, oferite întregii comunități, sunt dispuse în interiorul clădirii fostei fabrici Ca Alier.
Încadrată în patrimoniul artistic al orașului, intervenția asupra acesteia este minimă, punând în valoare calitatea spațiului și arhitecturii existente. Intervenția constă în reabilitarea structurii acoperișului și realizarea unui nivel intermediar parțial pentru nava principală și delimitarea unor spații de servicii în nava centrală, neintervenind asupra structurii existente.
Legătura între ansamblul educațional și clădirea fostei fabrici Ca Alier, amenajată ca spațiu de cultură, se realizează prin exterior, păstrând imaginea fabricii prin detașarea noului construit față de aceasta.
Proiectul prezintă o școală alternativă în cartierul Provencals de Poblenou, Barcelona, alături de conversia fabricii Ca Alier.
Am propus implementarea unui model de școală alternativă pentru copii cu vârste cuprinse între 6-16 ani, împărțită pe ciclul primar și secundar.
Dotările comune întregului ansamblu educațional, oferite întregii comunități, sunt dispuse în interiorul clădirii fostei fabrici Ca Alier.
Încadrată în patrimoniul artistic al orașului, intervenția asupra acesteia este minimă, punând în valoare calitatea spațiului și arhitecturii existente. Intervenția constă în reabilitarea structurii acoperișului și realizarea unui nivel intermediar parțial pentru nava principală și delimitarea unor spații de servicii în nava centrală, neintervenind asupra structurii existente.
Legătura între ansamblul educațional și clădirea fostei fabrici Ca Alier, amenajată ca spațiu de cultură, se realizează prin exterior, păstrând imaginea fabricii prin detașarea noului construit față de aceasta.






